alumas-toppic
詳細介紹
alumas-img

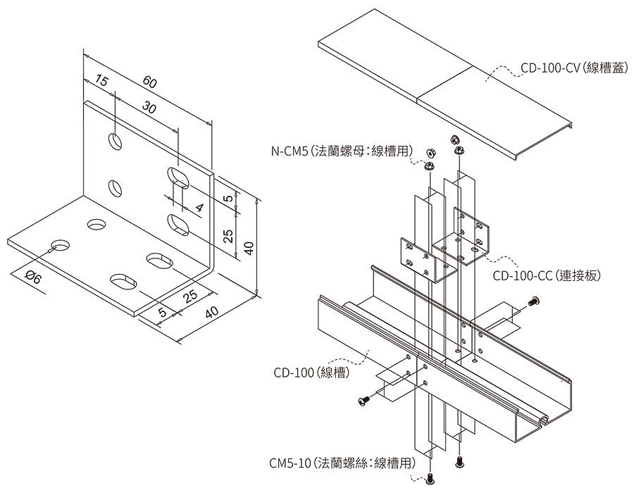
100系列連接板CD-100-CC

用途說明:

管線流道線槽與線槽之連接板

技術資料:

材質:AL
表面處理:皮膜處理

alumas-img

ALUMAS-電話 ALUMAS-地圖 ALUMAS-信箱

ALUMAS-logo

新竹市經國路一段147號

TEL:+886-3-5429988 FAX:+886-3-5319266

www.alumas.com.tw

ALUMAS-QRcode
Email
置頂
Copyright © 2019 ALUMAS All rights reserved . Design by PROC